爱游戏官方入口

洛杉矶HUNGRY MAN PRODUCTIONS总部设计 | FreelandBuck

案例说明

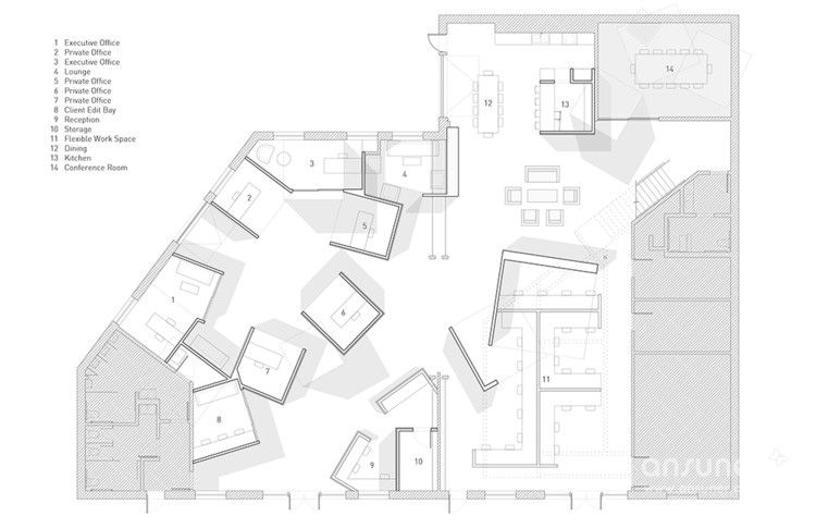
FreelandBuck最近完成了在洛杉矶的Hungry Man Productions总部设计。当被要求重新考虑办公室的组织时,设计师将员工的身份的轻松与一系列颠倒的隔间相匹配 ,这些隔间有趣地挑战了典型的办公空间的规律性。整个大型开放式办公区松散组织,非正式的安排创造了多样化的稳定和灵活的工作配置。此外,设计上充分利用 了仓库外壳的天花板高度,将箱体堆积起来,使视觉上突显和投影区域。在用cnc研磨的MDF的表面处理和涂上细节的表面处理这些翻滚的立方体。从特定的角度来看 ,这些铰接的表面创造了空间错觉和活跃、动态的工作氛围。


FreelandBuck最近完成了在洛杉矶的Hungry Man Productions总部设计。当被要求重新考虑办公室的组织时,设计师将员工的身份的轻松与一系列颠倒的隔间相匹配,这些隔间有趣地挑战了典型的办公空间的规律性。整个大型开放式办公区松散组织,非正式的安排创造了多样化的稳定和灵活的工作配置。此外,设计上充分利用了仓库外壳的天花板高度,将箱体堆积起来,使视觉上突显和投影区域。在用cnc研磨的MDF的表面处理和涂上细节的表面处理这些翻滚的立方体。从特定的角度来看,这些铰接的表面创造了空间错觉和活跃、动态的工作氛围。