爱游戏官方入口

巴比肯平

案例说明

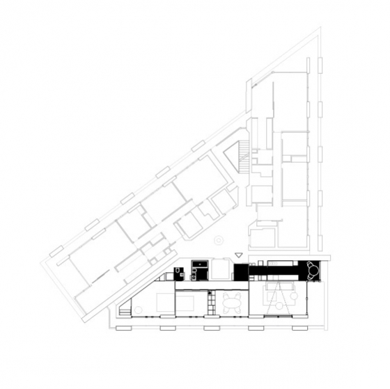
REFURBISHMENT OF A LISTED TOWER APARTMENT The flat is located above the city of London, only a short walk from the financial district amidst a on first sight, rough concrete oasis - the listed Barbican Centre. There is no traffic, instead ponds, gardens and a distinguished cultural centre on the ground level, including a concert hall, theatres, art galleries and cinemas. The 100 m² flat on the 17th floor of the Shakespeare Tower with spectacular view over the roofs of the city shall be the new residence of our client and also serve as an exhibition space. When the client purchased the flat it looked as if it was frozen in time with yellowed carpeting and the original kitchenette, albeit seemingly run down. Nevertheless the flat had a well arranged floor plan, although the corridor, kitchen and bathroom were located towards the inside of the building and therefore appeared dark and small. A Loggia stretches all around the flat. On the east side in front of the kitchen window it forms a terrace which offers unobstructed views over the skyline. From breakfast with the sunrise to an evening sunset it is only a few steps along the balcony. The flat shall become more flexible and spacious while maintaining the historic floor plan. Space for the display of contemporary art shall also be offered. The panoramic view must be visible from all corners of the flat. In order to achieve a greater lightness, the wall between the corridor and bedrooms was replaced by translucent sliding panels. Living rooms are completely coloured in white to underline their spaciousness and to form a minimalistic background for the art collection. In harsh contrast to this, the walls of the internal spaces of the corridor, bathroom and kitchen are coated with a smooth shimmering black cement finish. The dark finish allows small rooms to work larger and adds an elegance with the contrast to the white fixtures. The structure of the flat with its three layers becomes visible: the outside loggia, the white living rooms and the bathroom and kitchen completely wrapped in black. The solid wall between the bathroom and corridor was also removed and replaced by translucent sliding doors. When open, the owner can enjoy the panoramic view while soaking in the bathtub. If the balcony doors are also open, the gentle rumble of the metropolis can also be heard. The Barbican Estate was built between 1965 and 1976, on a site that was bombed in World War II.The complex was designed by the architects Chamberlin, Powell and Bon. The estate was officially opened in 1969 and is now home to around 4,000 people living in 2,014 flats. The flats reflect the widespread use in Britain in the 1960s and 1970s of concrete as the visible face of the building. "The intention underlying our design is to create a coherent residential precinct in which people can live both conveniently and with pleasure. Despite its high density the layout is spacious: the buildings and the space between them are composed in such a way as to create a clear sense of order without monotony. Uninterrupted by road traffic (which is kept separate from pedestrian circulation through and about the neighbourhood) a quiet precinct will be created in which people will be able to move about freely enjoying constantly changing perspectives or terraces, lawns, trees and flowers seen against the background or the new buildings or reflected in the ornamental lake." Chamberlin, Powell & Bon, Architects "Barbican Redevelopment" April 1959

案例指定产品 郁金香餐椅 A002-1
郁金香餐椅 A002-1